ブルーミングガーデン宇都宮市陽東4丁目 2号棟 栃木県宇都宮市陽東4丁目|4,798万円の新築一戸建て|宇都宮不動産小山城南店

TOPページ >
物件検索 >
新築一戸建て
>
宇都宮市
>
ブルーミングガーデン宇都宮市陽東4丁目 2号棟

新築一戸建て

ブルーミングガーデン宇都宮市陽東4丁目 2号棟

お気に入り
価格 4,798万円 ローンシミュレーション
所在地 栃木県宇都宮市陽東4丁目
この地域周辺の物件を見る
土地面積 164.56m² (49.77坪) 建物面積 107.8u
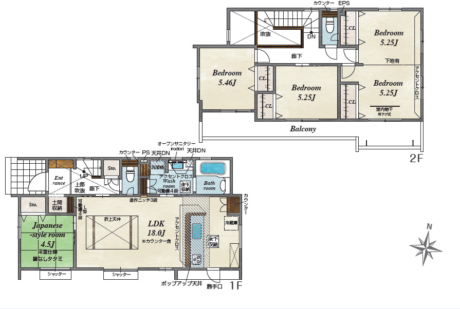
築年月 2026年8月築 間取り 4LDK (LDK18/和室4.5/洋室10.5/洋室5.4/洋室5.2)
交通
- - -
ここがおすすめ

◇大型ショッピングモール、ベルモール徒歩7分。毎日の生活に安心と潤いを♪ ◇LRT駅徒歩3分。幹線道路にも出やすく、交通の便バッチリ! ◇安心の長期優良住宅、耐震等級3。制震ダンパーが繰り返す地震から守ります。 ◇4LDK⇒5LDKへ改変可能。駐車場並列3台スペースで家族が増えても安心♪

お問い合わせ、資料請求、見学のお申し込みはこちらから

電話をかける(携帯可)
0285-37-8555
「ホームページを見た」とお伝え下さい。

お問い合わせ番号をお伝えください
RHS-164979

内見予約
お問合せ

セールスポイント

特徴
  • フローリング
  • 給湯器
  • オール電化
  • システムキッチン
  • カウンターキッチン
  • シャンプードレッサー
  • 追い焚き
  • シャワー
  • バス・トイレ別
  • シャワートイレ
  • 室内洗濯機置場
  • 浴室乾燥機
  • コンロ三口
  • 床下収納
  • バルコニー
  • TVドアホン
  • 宅配ボックス
  • カースペース2台以上
セールスコメント
◇4LDK⇒5LDKへ改変可能。駐車場並列3台スペースで家族が増えても安心♪ ◇太陽光発電付(10年リース期間あり)。オール電化でエコな暮らしを実現。 ◇コンビニローソン徒歩4分。急なお買い物やATM利用、マルチコピー機利用など、近くにあると助かるお店♪ ◇ご予算に沿った各種オプション工事も承ります。 ◇住宅ローンもお任せください!数ある金融機関からお客様にあった商品をご紹介いたします。


物件概要

採光面 東南 構造/階数 木造/地上2階建
建ぺい率 60(%) 容積率 200(%)
駐車場 現況/引渡し -/2026年8月下旬
土地権利 所有権 私道負担面積 -

接道状況 接道: 西 公道 道路幅: 4m 用途地域
第一種住居地域
セットバック なし 法令上の制限 -
地目 宅地 地勢
建築確認番号 25UDI1W建14220 都市計画 -
取引態様 仲介
情報更新日 2026年05月30日 次回更新日 2026年06月13日
※各種情報と差異がある場合は現況優先となります

学区情報

小学校区 宇都宮市立泉が丘小学校
(栃木県宇都宮市)
この学区の他の物件を見る
中学校区 泉が丘中学校
(栃木県宇都宮市)
この学区の他の物件を見る
※物件情報の学区情報について
当サイト物件情報に記載されております通学区域(学区)情報は、国土数値情報ダウンロードサービスが提供する小学校区データ【2021年度】及び中学校区データ【2021年度】を元に加工したものですので、記載情報が現在の学区域と異なる場合がございます。
国土数値情報ダウンロードサービスのWEBサイト上で記述通り、データは必ずしも正確とは言えません。また、通学区域(学区)は毎年見直しの対象となりますので、そちらを踏まえ学区情報は参考としてご活用下さい。

お問い合わせ、資料請求、見学のお申し込みはこちらから

電話をかける(携帯可)
0285-37-8555
「ホームページを見た」とお伝え下さい。

お問い合わせ番号をお伝えください
RHS-164979

内見予約
お問合せ

この物件でローンシミュレーションする

価格 万円
年利率
ボーナス払い 返済年数
頭金 直接入力する 万円

毎月のご返済額

ボーナス(×年2回)

物件価格

4,798万円
※返済金額はあくまでも目安です。

こちらの物件は複数区画の分譲地・他にも販売中のマンションがあります。

宇都宮市陽東4丁目
4798万円
  • こちらの物件を見たお客様はこんな物件もチェックしています。
  • お気に入り物件

電話をかける(携帯可)
0285-37-8555
「ホームページを見た」とお伝え下さい。

お問い合わせ番号をお伝えください
RHS-164979

内見予約
お問合せ

お問い合わせ

  1. 1
    内容入力
  2. 2
    内容確認
  3. 3
    完了
お問合せ内容必須
【備考欄】
詳細な見学ご希望時間、ご質問、ご希望条件などがございましたらお聞かせ下さい。
(2000文字以内)
お名前必須
メールアドレス必須
※ご記入いただいたメールアドレス宛てに、お問合せ内容の確認メールをお送りいたします。
※Yahoo!メールなどのフリーメールをご利用の場合、迷惑メールフォルダに入る場合があります。
 迷惑メールのフォルダ・設定等をご確認下さい。
電話番号必須
FAX(任意)
※ご入力いただいたお客さまの個人情報は、「個人情報の取扱いについて」に基づき適正に取り扱います。必ずお読みになり、同意の上お問い合わせください。

お気軽にお問い合わせください

0285-37-8555
物件番号 RHS-164979
※「ホームページを見た」
とお伝え下さい。